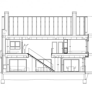
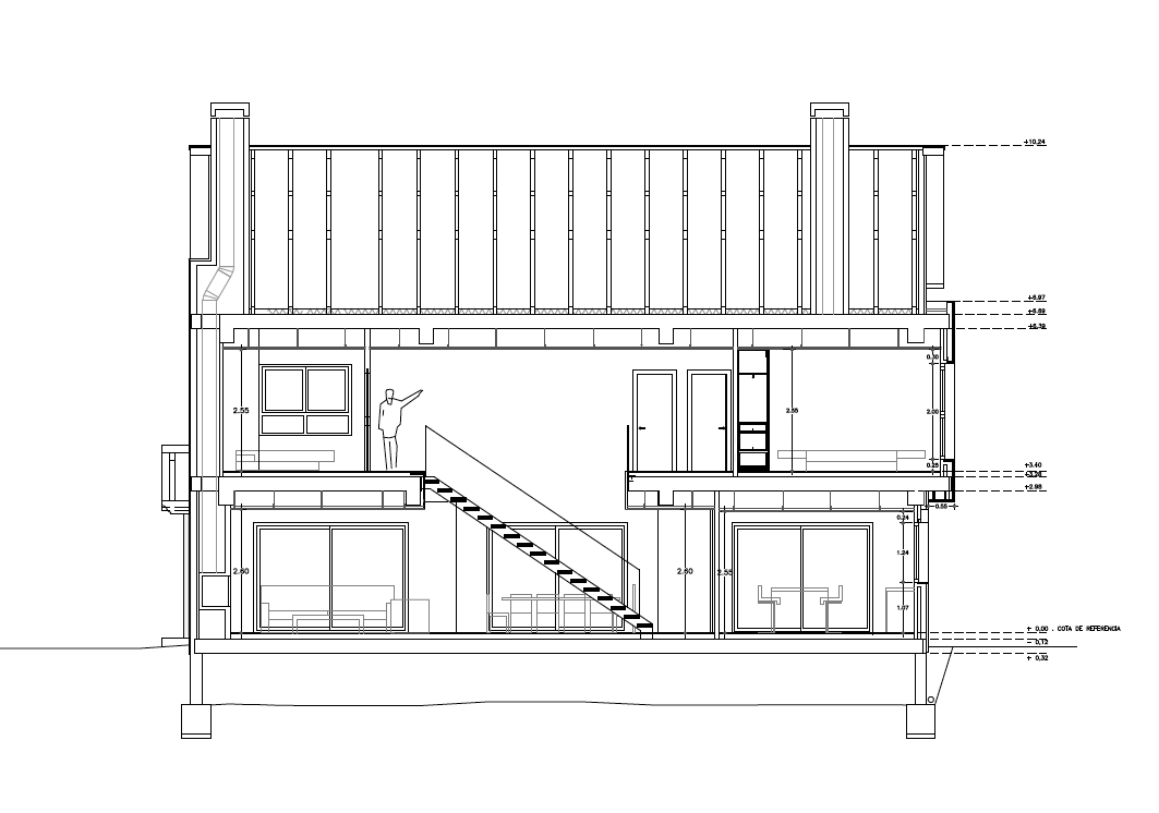
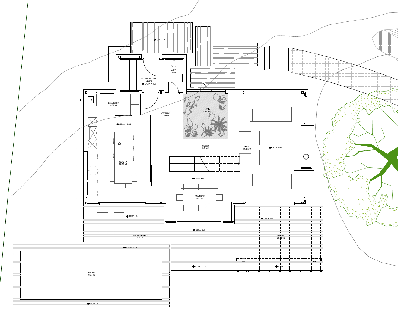
VIVIENDA EN NAVACERRADA

Vivienda unifamiliar en Navacerrada. Superficie 250 m2.  Se interrelaciona con su entorno y se posiciona intentando marcar su carácter individual e innovador basado en formas simples y materiales que buscan contrastar con el paisaje de la montaña.


contacto