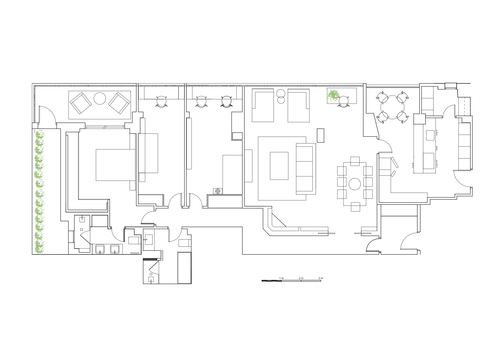
REFORMA ARTURO SORIA

Reforma de vivienda unifamiliar con ampliación de cocina y reestructuración completa de los baños.




contacto